Proposal for townhomes at former bank property in Lafayette Hill

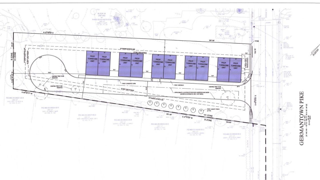
A proposal for 10 townhomes for the property at 612 Germantown Pike in Lafayette Hill (Whitemarsh Township) has been submitted to Whitemarsh Township. The 1.4 acre property was the longtime home of a branch of Wells Fargo Bank, which closed in 2023.

In September, a sketch plan involving townhomes was submitted for the neighboring property of 604-608 Germantown Pike. That plan involves another developer.

The applicant submitting the sketch plan is 612 Germantown Pike, LLC, which is associated with Corey Gee, a Lafayette Hill mortage broker.

Townhomes are permitted by conditional use, which means that if a formal proposal is submitted, the final determination will be made by the board of supervisors. You can view the sketch plan here.

Neither sketch plan linked to in this article has been reviewed by the township’s planning commission as of October 11th.

Image – 612 Germantown Pike, LLC (from its application)